xxx
1533 Gemeente Beemster: Bouwvergunningen (Gescand, deels online), 1991 - 2010
Uitleg bij archieftoegang

Een archieftoegang geeft uitgebreide informatie over een bepaald archief.

Een archieftoegang bestaat over het algemeen uit de navolgende onderdelen:

• Kenmerken van het archief
• Inleiding op het archief
• Inventaris of plaatsingslijst
• Eventueel bijlagen

De kenmerken van het archief zijn o.m. de omvang, vindplaats, beschikbaarheid, openbaarheid en andere.

De inleiding op het archief bevat interessante informatie over de geschiedenis van het archief, achtergronden van de archiefvormer en kan ook aanwijzingen voor het gebruik bevatten.

De inventaris of plaatsingslijst is een hiërarchisch opgebouwd overzicht van beschreven archiefstukken. De beschrijvingen zijn formeel en globaal. Het lezen en begrijpen van een inventaris behoeft enige oefening en ervaring.

Bij het zoeken in de inventaris wordt de hiërarchie gevolgd. De rubrieken in de inventaris maken deel uit van de beschrijving op een lager niveau. Komt de zoekterm in een hoger niveau voor, dan voldoen onderliggende niveaus ook aan de zoekvraag.

beacon
Inventaris
Records 1 t/m 100
1533 Gemeente Beemster: Bouwvergunningen (Gescand, deels online), 1991 - 2010
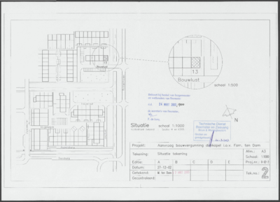
834
Bouw van een loggia
Datering:
2003
Beschrijving:
Bouw van een loggia
Adres:
Middenbeemster - Bouwlust 13  
Architect:
M. ten Dam  
Perceel:
Beemster, sectie H 1205  
Kadastraal nummer:
Beemster, H/1205
Oude orde of Bouwverg. nr.:
17010
Records 201 t/m 300
Records 301 t/m 400
Records 401 t/m 500
Records 501 t/m 600
Records 601 t/m 700
Records 701 t/m 800
Records 801 t/m 900
Records 901 t/m 1000
Records 1001 t/m 1100
Records 1101 t/m 1200
Records 1201 t/m 1300
Records 1301 t/m 1400
Records 1401 t/m 1500
Records 1501 t/m 1600
Records 1601 t/m 1700
Records 1701 t/m 1800
Records 1801 t/m 1900
Records 1901 t/m 2000
Records 2001 t/m 2100
Records 2101 t/m 2200
Records 2201 t/m 2300
Records 2301 t/m 2400
Records 2401 t/m 2500
Records 2501 t/m 2600
Records 2601 t/m 2700
Records 2701 t/m 2800
Records 2801 t/m 2900
Records 2901 t/m 3000
Records 3001 t/m 3100
Records 3101 t/m 3200
Records 3201 t/m 3300
Records 3301 t/m 3400
Records 3401 t/m 3433

Kenmerken

Datering:
1991 - 2010
Notabene:
tot en met inv.nr. 1202 en van 3280 tot en met 4107 digitaal beschikbaar
Plaats:
Beemster
Omvang:
31,5
Depot:
Depot 4e etage
Stelling:
16/7/3
Citeerinstructie:
Bij het citeren in annotatie en verantwoording dient het archief tenminste eenmaal volledig en zonder afkortingen te worden vermeld. Daarna kan worden volstaan met verkorte aanhaling.
VOLLEDIG:
Waterlands Archief, Purmerend. Toegang 1533 Gemeente Beemster: Bouwvergunningen (Gescand, deels online), 1991 - 2010
VERKORT:
NL-PmWA 1533